Donnerstag, 14.05.2026

Bekanntmachung einer Einziehungsverfügung; hier: Gemarkung St. Gertrud

Bekanntmachung einer Einziehungsverfügung

1.        Nach § 8 Abs. 1, Satz 2, des Straßen- und Wegegesetzes (StrWG) des Landes Schleswig-Holstein in der
            Fassung der Bekanntmachung vom 25.11.2003 (GVOBl. Schl.-H. S. 631) wird in der Hansestadt Lübeck
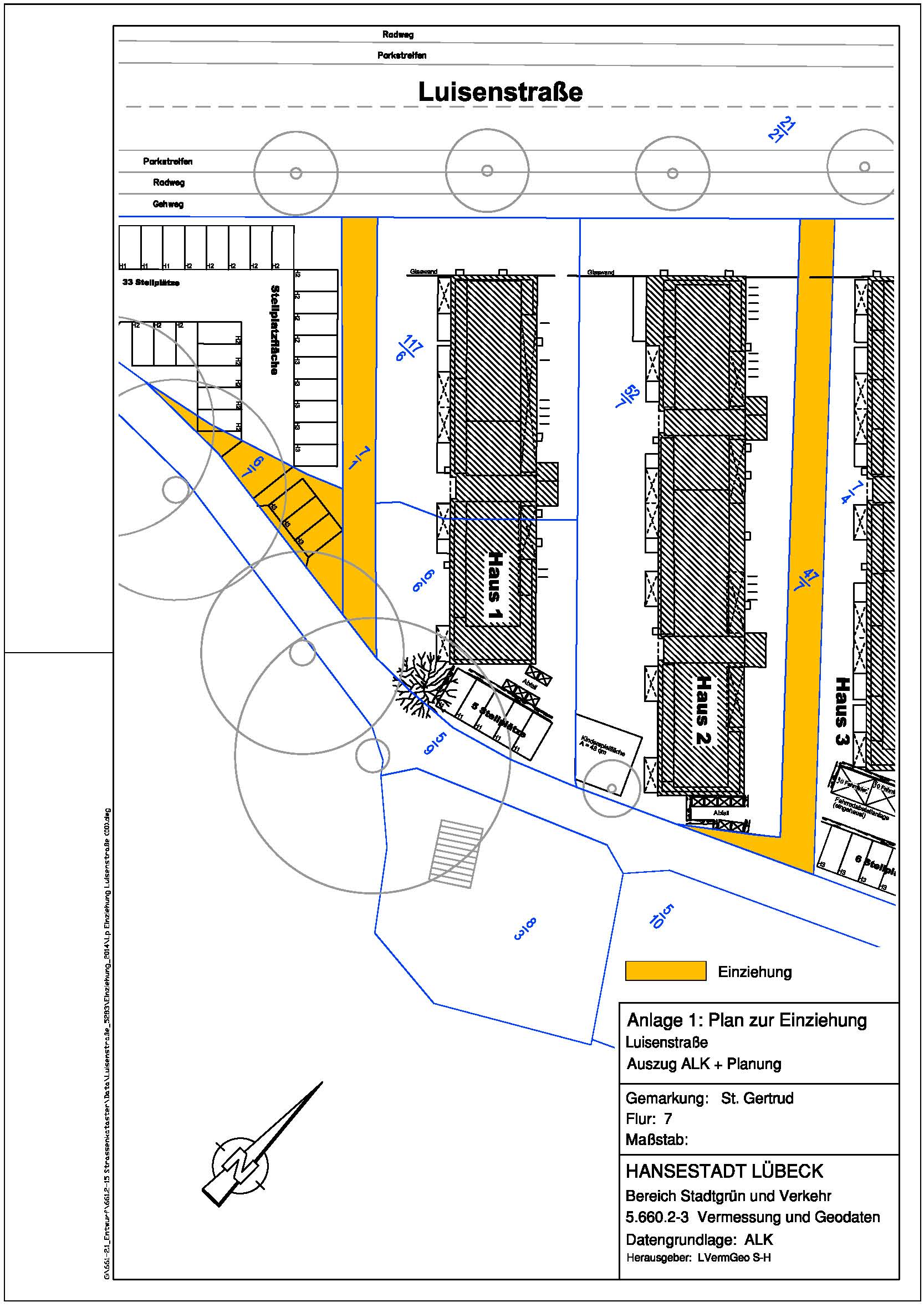
            folgende öffentliche Verkehrsfläche gemäß Plan eingezogen:

 

Zwei öffentliche Wege und eine Dreiecksfläche östlich der Luisenstraße bei den Gebäuden 2-36:

Gemarkung St. Gertrud, Flur 7, Flurstücke 7/1, 47/7 und 6/7

 

(Skizze siehe Anlage unten)

 

 

 

2.        Rechtsbehelfsbelehrung

Gegen diese Verfügung kann innerhalb eines Monats nach Bekanntmachung schriftlich oder zur Niederschrift bei der auslegenden Dienststelle – Bereich 660 Stadtgrün und Verkehr, Kleiner Bauhof 11, Zimmer 3.-1.01 ff – Widerspruch eingelegt werden.

 

3.        Der Verwaltungsakt und seine Begründung können im Fachbereich 5 Planen und Bauen
           der Hansestadt Lübeck, Mühlendamm 12, im i-Punkt (Foyer/ Erdgeschoss) während der Geschäftszeiten:

montags bis mittwochs jeweils von 8.00 Uhr bis 16.00 Uhr,

donnerstags von 8.00 Uhr bis 18.00 Uhr,

freitags von 8.00 Uhr bis 12.00 Uhr

eingesehen werden.

Lübeck, den 01.10.2014

gez. Saxe                               Siegel

Hansestadt Lübeck

Informationen
  • Veröffentlicht am:
    21.10.2014
Anlagen