Donnerstag, 23.04.2026

Bekanntmachung Einziehungsverfügung; hier: Teilfläche Havemeisterweg

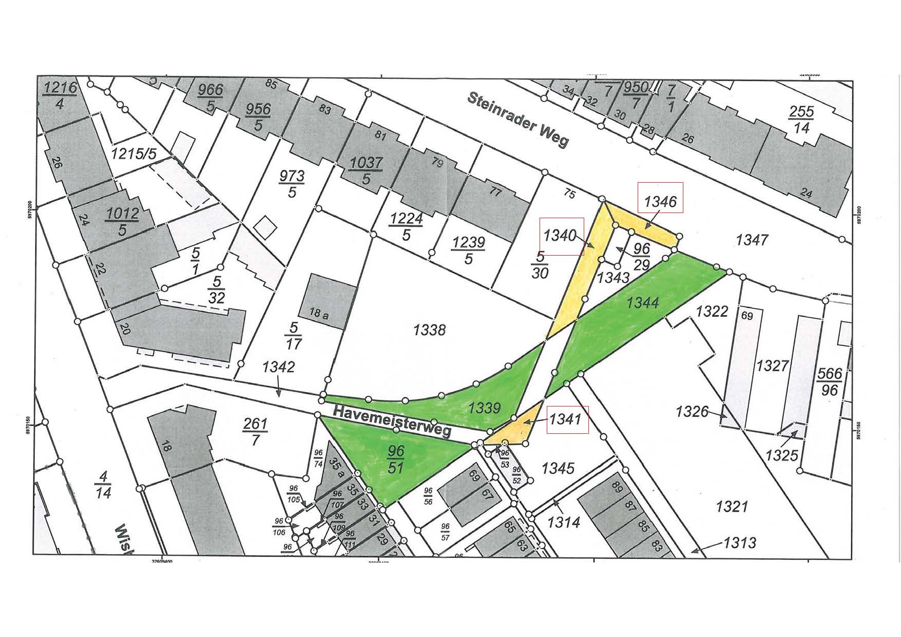
Bekanntmachung einer Einziehungsverfügung

 

1.                  Nach § 8 Abs. 1, Satz 2, des Straßen- und Wegegesetzes (StrWG) des Landes Schleswig-Holstein in der Fassung der Bekanntmachung vom 25.11.2003 (GVOBl. Schl.-H. S. 631) wird in der Hansestadt Lübeck folgende öffentliche Verkehrsfläche gemäß Plan eingezogen:

 

Teilflächen des Havemeisterwegs

Gemarkung St. Lorenz, Flur 15, Flurstücke 1340, 1341 und 1346.

 

Skizze:
(siehe Anlage unten)

 

 

 

2.                  Rechtsbehelfsbelehrung

Gegen diese Verfügung kann innerhalb eines Monats nach Bekanntmachung schriftlich oder zur Niederschrift bei der auslegenden Dienststelle – Bereich 660 Stadtgrün und Verkehr, Kleiner Bauhof 11, Zimmer 3.-1.01 ff – Widerspruch eingelegt werden.

 

3.                  Der Verwaltungsakt und seine Begründung können im Fachbereich 5 Planen und Bauen der Hansestadt Lübeck, Mühlendamm 12, im i-Punkt (Foyer/ Erdgeschoss) während der Geschäftszeiten:

montags bis mittwochs jeweils von 8.00 Uhr bis 16.00 Uhr,
donnerstags von 8.00 Uhr bis 18.00 Uhr,
freitags von 8.00 Uhr bis 12.00 Uhr

eingesehen werden.

 

Lübeck, den 30.06.2015

gez. Saxe                              Siegel

Hansestadt Lübeck Der Bürgermeister

Informationen
  • Veröffentlicht am:
    14.07.2015
Anlagen