Donnerstag, 23.04.2026

Aufstellungsbeschlüsse B-Plan Schönböckener Straße/Hagenskoppel

 Bauleitplanung der Hansestadt Lübeck

 

hier:   

1.         Bekanntmachung der Aufstellungsbeschlüsse für den Bebauungsplan 23.26.00 –
            Schönböckener Straße 102-104 / Hagenskoppel – und die zugehörige 123. Änderung
            des Flächennutzungsplanes der Hansestadt Lübeck für den Teilbereich
            „Schönböckener Straße / Hagenskoppel“


2.         Öffentliche Unterrichtung über die allgemeinen Ziele und Zwecke der Planung nach
            § 3 Abs. 1 BauGB für den Bebauungsplan 23.26.00 – Schönböckener Straße 102-104 /
            Hagenskoppel – und die zugehörige 123. Änderung des Flächennutzungsplanes der
            Hansestadt Lübeck für den Teilbereich „Schönböckener Straße / Hagenskoppel“

 

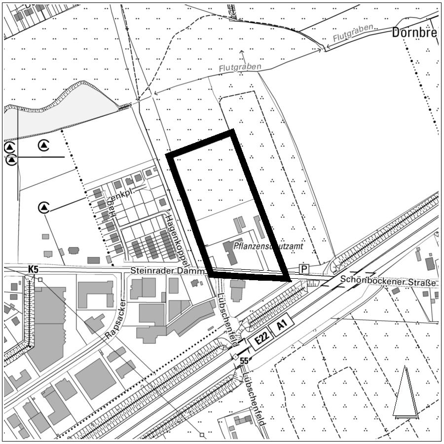
Der Bauausschuss der Hansestadt Lübeck hat in seiner Sitzung am 15.02.2016 beschlossen, dass für das nachfolgend dargestellte Gebiet der Bebauungsplan 23.26.00 – Schönböckener Straße 102-104 / Hagenskoppel und die zugehörige 123. Änderung des Flächennutzungsplanes der Hansestadt Lübeck für den Teilbereich „ Schönböckener Straße / Hagenskoppel“ aufgestellt werden.

 

Das Plangebiet liegt im Stadtteil St. Lorenz Nord, Ortsteil Schönböcken nordwestlich der A1. Es umfasst die Grundstücke des ehemaligen Pflanzenschutzamtes Schönböckener Straße 102 und 104 einschließlich der nördlich anschließenden  landwirtschaftlich genutzten Fläche sowie einen Teil der südlich angrenzenden Straßenverkehrsfläche (Flurstücke 11/14, 11/5, 11/6 und 97/30 tlw. der Flur 1, Gemarkung Schönböcken).

Der Geltungsbereich wird im Norden durch die Flutgrabenniederung, im Osten durch die Kleingartenanlage „Theophil“, im Süden durch die Schönböckener Straße, die im weiteren Verlauf in den Steinrader Damm übergeht, und im Westen durch die Rad- und Fußwegeverbindung auf dem „Alten Bahndamm“ (Fortsetzung Lübschenfeld) und das an den Weg westlich anschließende Wohngebiet Hagenskop­pel begrenzt.

 

Skizze:

(Siehe Anlage unten)

 

 

 

Allgemeine Ziele und Zwecke der Planung

 

Mit der Aufstellung des Bebauungsplanes 23.26.00 – Schönböckener Straße 102-104 / Hagenskoppel - und der zugehörigen 123. Änderung des Flächennutzungsplanes sollen die planungsrechtlichen Voraussetzungen für die Entwicklung eines Einfamilienhausgebietes nördlich der Schönböckener Straße geschaffen werden.

 

Der Öffentlichkeit wird in der Zeit vom 18.05.2016 bis einschließlich 01.06.2016 montags bis mittwochs jeweils von 8.00 Uhr bis 15.00 Uhr, donnerstags von 8.00 bis 18.00 Uhr sowie freitags von 8.00 bis 12.00 Uhr im Fachbereich Planen und Bauen der Hansestadt Lübeck, Bereich Stadtplanung, Mühlendamm 12 – i-Punkt / Foyer (Erdgeschoss), durch Aushang der erarbeiteten Planungsvorstellungen Gelegenheit zu weiterer Information (Ziel, Zweck und Auswirkung der Planung) sowie zur Äußerung und Erörterung gegeben.

Diese Unterlagen können auch auf den Internetseiten der Hansestadt Lübeck eingesehen werden unter: www.stadtentwicklung.luebeck.de/stadtplanung.

 

Ferner werden die für die Flächen des Planungsgebietes erarbeiteten Ziele und Zwecke der Planung einschließlich ihrer voraussichtlichen Auswirkungen in einer öffentlichen Veranstaltung am 18.05.2016, um 18.00 Uhr, im Foyer des Fachbereiches Planen und Bauen der Hansestadt Lübeck, Mühlendamm 12 gesondert dargelegt. Dabei wird ebenfalls Gelegenheit zur Äußerung und Erörterung gegeben.

 

Die frühzeitige Öffentlichkeitsbeteiligung ist gleichzeitig die Beteiligung der Kinder und Jugendlichen an der Planung gemäß § 47 f der Gemeindeordnung für Schleswig-Holstein (GO).

 

 

Lübeck, 09.05.2016                                                                                       Hansestadt Lübeck
                                                                                                                           Der Bürgermeister
                                                                                                                           Fachbereich 5 – Planen und Bauen
                                                                                                                           Bereich Stadtplanung und Bauordnung

Informationen
  • Veröffentlicht am:
    10.05.2016
Anlagen