Donnerstag, 14.05.2026

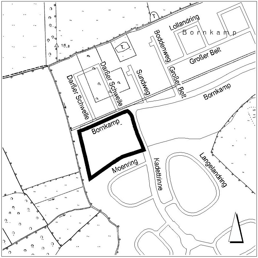
B-Plan 09.07.01 – Bornkamp

Bauleitplanung der Hansestadt Lübeck

 

 

hier:    Bekanntmachung des Bebauungsplanes 09.07.01 – Bornkamp– nach § 10 (3) BauGB

 

Die Bürgerschaft der Hansestadt Lübeck hat in ihrer Sitzung am 13.09.2007 den Bebauungsplan 09.07.01 – Bornkamp – bestehend aus der Planzeichnung (Teil A) und dem Text (Teil B), als Satzung beschlossen.

 

 

Dieses wird hiermit bekannt gemacht.

 

Übersichtsplan s. Anlage

 


Der v. g. Bebauungsplan tritt mit Beginn des 19.12.2007 in Kraft. Alle Interessierten können den Bebauungsplan und die Begründung dazu von diesem Tage an auf Dauer im Fachbereich Planen und Bauen, Bereich Stadtplanung der Hansestadt Lübeck, Mühlendamm 12, während der Servicezeiten einsehen und über den Inhalt Auskunft erhalten.

 

Lübeck, 11.12.2007 Der Bürgermeister


 

 

Frist und Voraussetzungen für die Geltendmachung der Verletzung von

Vorschriften des BauGB (§ 215 (2) BauGB)


Eine Verletzung der in § 214 Abs. 1 Satz 1 Nr. 1 bis 3 BauGB bezeichneten Verfahrens- und Formvorschriften, eine unter Berücksichtigung des § 214 Abs. 2 beachtliche Verletzung der Vorschriften über das Verhältnis des Bebauungsplanes und des Flächennutzungsplanes und nach § 214 Abs. 3 Satz 2 BauGB beachtliche Mängel des Abwägungsvorganges sind unbeachtlich, wenn sie nicht innerhalb eines Jahres seit dieser Bekanntmachung schriftlich gegenüber der Hansestadt Lübeck geltend gemacht worden sind. Dabei ist der Sachverhalt, der die Verletzung oder den Mangel begründen soll, darzulegen (§ 215 (1) BauGB).

 

 

Fälligkeit und Erlöschen möglicher Entschädigungsansprüche

 

Auf die Vorschriften des § 44 (3) Satz 1 und 2 sowie (4) BauGB über die fristgemäße Gel­tendmachung etwaiger Entschädigungsansprüche für Eingriffe durch diesen Bebauungsplan in eine bisher zulässige Nutzung und über das Erlöschen von Entschädigungsansprüchen wird hingewiesen.

 

 

Verletzung landesrechtlicher Formvorschriften

 

Unbeachtlich ist ferner eine Verletzung der in § 4 Abs. 3 GO bezeichneten landesrechtlichen Formvorschriften über die Ausfertigung und Bekanntmachung der Bebauungsplansatzung sowie eine Verletzung von Verfahrens- und Formvorschriften der Gemeindeordnung, wenn sie nicht schriftlich innerhalb eines Jahres seit Bekanntmachung der Satzung gegenüber der Hansestadt Lübeck unter Bezeichnung der verletzten Vorschrift und der Tatsache, die die Verletzung ergibt, geltend gemacht worden ist.

 

Lübeck, 17.12.2007                        Hansestadt Lübeck

                                                            Der Bürgermeister

                                                            Fachbereich 5 – Planen und Bauen

                                                            Bereich Stadtplanung

Informationen
  • Veröffentlicht am:
    18.12.2007
Anlagen